Комплект для конденсаторных батарей
В комплект входят все аксессуары необходимые для сборки и подключения конденсаторных батарей
В состав комплекта входят следующие компоненты:
-
стальная рама
-
медные соединители как для фазы так и для заземления конденсаторов,
-
поддерживающие изоляторы
-
болты и гайки.
Для полнокомплектной батареи также требуется подбор однофазных конденсаторов, компоненты для защиты от разбалансировки, реле и трансформаторы тока, при необходимости стреляющие предохранители, ограничительные реакторы а также все соответствующие аксессуары.
Рамы для трехфазных батарей
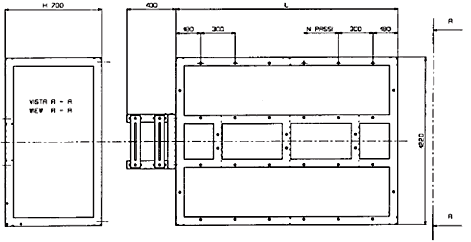
Трехфазные батареи, состоящие из однофазных конденсаторов, собираются на стальных рамах. Рамы изготавливаются из сварных стальных конструкций и оцинкованы горячим способом для защиты от атмосферных воздействий. Защитный цинковый слой имеет толщину 600 г/м2.
|
Кол-во конденсаторов
|
L, мм
|
Вес, кг |
|
6 |
960 |
140 |
|
12 |
1860 |
190 |
|
18 |
2760 |
250 |
|
24 |
3660 |
290 |
Рис. 15 – Рамы для стандартных конденсаторных батарей. В таблице указана масса комплектов для конденсаторных батарей
| Кол-во конденсаторов |
Стреляющие предохранители
|
Внутренние предохранители |
|
L, мм
|
L, мм |
|
3 + 3 |
1110 |
1010 |
|
4 + 4 |
1360 |
1260 |
|
6 + 6 |
1860 |
1760 |
|
8 + 8 |
2360 |
2260 |
|
H mm
|
845 |
480 |
Рис. 16 — Однофазная рама для трехфазных ярусных батарей.
Поддерживающие изоляторы для наружного использования
Представляют собой эмалированные коричневые керамические изоляторы серии IEC, класс изоляции 24кВ.
Как для внутренних, так и для наружных версий, эти изоляторы используются для поддержки соединительных элементов в трехфазных батареях, а также для поддержки ограничительных реакторов.
-
Тип: C4 −125 класс I
-
Рабочее напряжение: 24 кВ
-
Длина пути тока утечки: 445 мм
-
Масса: 6.6 кг
Рис. 17 – Дистанционный изолятор C4-125